La ou les missions
Mission conception / Mission décoration et choix du mobilier/ Mission suivi de chantier
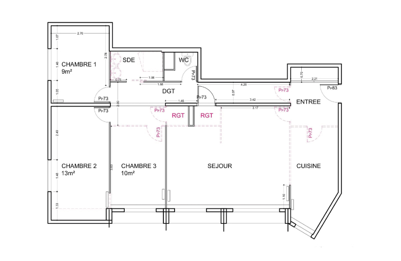
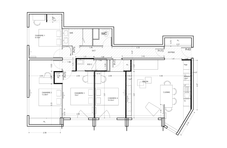
Les besoins
Les clients souhaitent rénover intégralement le bien immobilier et ainsi y créer une pièce de vie agréable et optimisée où les futurs colocataires pourront se retrouver. Ils souhaitent aussi ajouter une chambre et SDE supplémentaire pour valoriser le bien et augmenter la rentabilité de celui ci.
En parallèle, de gros travaux seront réalisés par la copropriété ( changement des menuiseries extérieures, isolation par l’extérieur, changement des radiateurs et de la VMC)
Les contraintes
Un mur porteur traversant presque la totalité de l’appartement et des murs de refends béton en guise de cloison entre plusieurs pièces. La contrainte forte a été de s’adapter à cela pour optimiser au mieux les espaces
L’objectif principal
Valoriser le bien immobilier resté dans son jus depuis de nombreuses années et l’optimiser afin qu’ils conviennent aussi bien pour de l’investissement locatif que pour une résidence principale. Le but est de créer un cocon agréable à vivre pour les 4 futurs colocataires où ils se sentiront bien.




